Project Overview
Amidst an array of conveniences and verdant grounds, The Lattice interlaces urban and natural environments. Featuring pocket gardens, a great lawn, a pool deck, and retail choices—all will be just a few steps away to create a seamless atmosphere where connections flourish.
Two of the Philippines’ leading property developers embark on a landmark partnership with the largest mixed-use development along the thriving C5 corridor. Transforming landscapes into masterplanned estates, Eton Properties and Ayala Land merge an unparalleled track record to bring you a shared vision, culminating into a dynamic center of growth.


Location Plan
Introducing the greenest urban estate in Metro Manila, Parklinks, a 35-hectare sustainable masterplan synthesizing diverse environments for living, working, and leisure. Bringing utmost connectivity and convenience, the estate emerges at the center of two major areas of growth—Quezon City and Pasig. Highly accessible via C5, Amang Rodriguez Avenue, and Ortigas Avenue, Parklinks is strategically located as a convergence point for urban centers in Makati, BGC, Ortigas and QC, as well as neighboring residential communities, educational institutions, and commercial establishments.

Site Development Plan

Amenities
Bridging Pasig and Quezon City, Parklinks is thoughtfully master planned to maximize access to 50% parks and open spaces, with a mere 5-minute walk for residents, office workers and the public from the mall, office and living spaces through a well-designed and managed walkway system.
- - Viewing Deck
- - Pool Deck
- - Al Fresco Lounge
- - Multi-Purpose Lawn
- - Kid's Play Area
- - Great Lawn
- - Lap/Lounge/Kid's Pool
- - Function Room





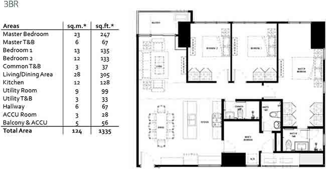
Floor Plans




Model Unit


Audio-Visual Presentation
360° Virtual Tours
